CarlaMarisaMadeira

landscape architect

Menu

Skip to content
  • Landscape Architect Work
    • landscape projects list
      • design for all
      • design equipment
      • public participation
    • landscape planning
    • presentations and articles
  • other activities
    • loja da guarda brand
    • Social Project – AHP brand
  • about me
  • Contact
« »

January 15, 2015
800 × 600
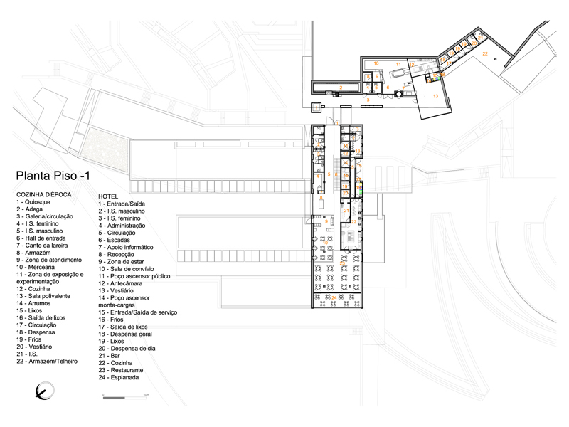
season farm hotel
Blog at WordPress.com.
Facebook
  • Subscribe Subscribed
    • CarlaMarisaMadeira
    • Already have a WordPress.com account? Log in now.
    • CarlaMarisaMadeira
    • Subscribe Subscribed
    • Sign up
    • Log in
    • Copy shortlink
    • Report this content
    • View post in Reader
    • Manage subscriptions
    • Collapse this bar